科翔KXT1583型空調熱舒適性環境試驗室,用于模擬空調運行下的環境條件,測試空調運行下體感的舒適性研究。本試驗室包含室內側、室內側外室、室外側以及配套測量儀器、控溫濕度系統、舒適性實驗室溫濕度測量裝置、風場測試裝置、熱負荷試驗裝置、測試臺架等。
實驗室由室內側(含內室和外室)、室外側兩部分兩部分組成?。室內側內室為模擬普通用戶住房,磚墻結構;室內側外室溫濕度可調;室外側為保溫庫板,溫濕度可調。室內側內室溫濕度通過打開室內側內室的門與室內側外室換熱來控制。
軟件系統能實現電壓、電流、功率、頻率、溫度場、風速場等曲線的顯示、編輯及打印功能。
實驗室設計滿足以下標準的測試要求:
序號 |
標準號 |
標準名稱 |
1? |
T/CAS 592-2022 |
房間空氣調節器舒適性控制功能技術規范 |
2? |
T/CAS 353-2019 |
自由風感舒適型分體式房間空氣調節器 |
3? |
T/CAS 591-2022 |
房間空氣調節器啟動及連續運行耗電量技術規范 |
4? |
T/CRAAS 1012-2022 |
空調器寬適應性運行技術規范 |
?
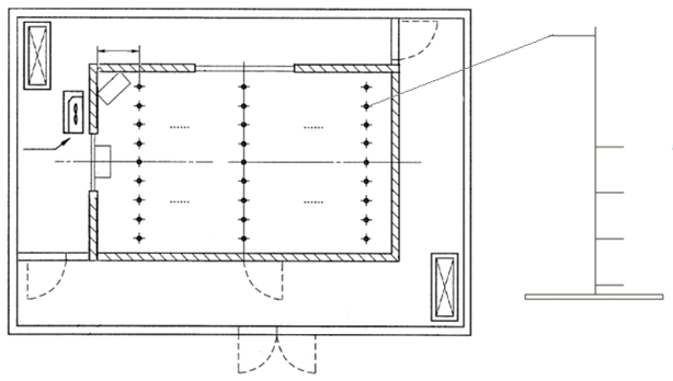
1、?試驗室結構示意圖
試驗室結構見下圖所示,由室內側(含內室和外室)和室外側兩部分組成。室內側內室為模擬普通用戶住房,磚墻結構;室內側外室溫濕度可調;室外側為保溫庫板,溫濕度可調。室內側內室溫濕度通過打開室內側內室的門與室內側外室換熱來控制。

舒適性環境試驗室結構示意圖
2、?室內側內室結構
磚墻:輕質磚結構,水泥混合砂漿批蕩,每扇墻外側貼外墻瓷磚,內側扇灰,外側墻厚0.27m(含裝修材料厚度),內側墻厚0.21m(含裝修材料厚度)。
屋頂:現澆鋼筋混凝土結構,厚0.1m,平頂,做防水處理。
窗戶:塑鋼玻璃結構,寬不大于1.4m,高不大于1.5m,玻璃厚度不小于5×10-3m。
門:普通木板制作,寬0.9m,高2m。
圍護結構傳熱系數
試驗室房間圍護結構傳熱系數滿足下表規定。
實驗室圍護結構傳熱系數
圍護結構類型 |
傳熱系數 W/m2·K |
屋頂 |
≤3.56 |
外側墻 |
≤1.46 |
內側墻 |
≤1.58 |
玻璃窗 |
≤2.00 |
內側普通木質門 |
≤2.00 |
?
3、?房間面積及房間內檢測點布置
3.1室內側內室尺寸
根據被測樣機額定制冷量按下表選擇相應的模擬環境試驗室。
室內側內室凈空間尺寸
|
額定制冷量(CC) W |
室內側內室尺寸 m |
面積 m2 |
||
長 |
寬 |
高 |
||
CC ≤ 2500 |
3.8~4.5 |
2.7~3.2 |
3.0±0.3 |
10~13 |
2500 < CC ≤ 4500 |
4.5~5.5 |
3.2~3.5 |
3.0±0.3 |
13~18 |
4500 < CC ≤ 7100 |
7.0~8.0 |
4.0~5.0 |
3.0±0.3 |
18~34 |
7100 < CC ≤ 9000 |
8.5~9.5 |
4.0~5.0 |
3.0±0.3 |
34~45 |
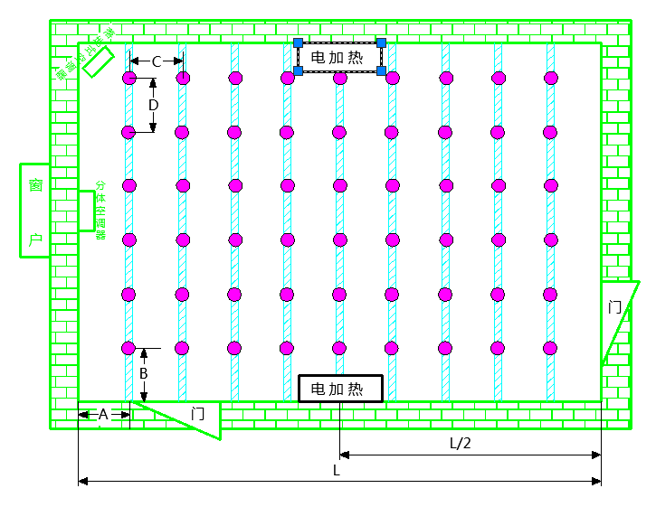
熱負荷布置
環境模擬試驗室室內熱負荷的電加熱設備放在試驗室被測空調器安裝面的左右兩側墻中間的地上,見下圖所示,兩邊平均分配負荷大小。
?
舒適性環境試驗室溫度點布局示意圖
測量精度:
功能分類 |
試驗項目 |
試驗工況讀數允差 |
冷熱感功能 |
人體散熱量(制冷工況)、熱舒適性滿意率(制冷工況) |
符合GB/T 7725—2004的表5規定。 |
人體散熱量(制熱工況)、熱舒適性滿意率(制熱工況) | ||
環境舒適性 |
房間溫降、制冷房間溫度極差 |
室內干球溫度:最大允差±0.5℃,平均偏差±0.2℃? 室內相對濕度:最大允差±8%,平均偏差±5% 墻體平均溫度:最大允差±0.5℃,平均偏差±0.2℃? 室外干球溫度:最大允差±0.5℃,平均偏差±0.2℃? 室外相對濕度:最大允差±5%,平均偏差±3% |
房間溫升、制熱房間溫度極差 |
室內干球溫度:最大允差±0.5℃,平均偏差±0.2℃? 墻體平均溫度:最大允差±0.5℃,平均偏差±0.2℃? 室外干球溫度:最大允差±0.5℃,平均偏差±0.2℃? 室外相對濕度:最大允差±5%,平均偏差±3% |
|
快速制冷 |
室內干球溫度:最大允差±0.5℃,平均偏差±0.2℃? 室內相對濕度:最大允差±8%,平均偏差±5% 墻體平均溫度:最大允差±0.5℃,平均偏差±0.2℃? 室外干球溫度:最大允差±0.5℃,平均偏差±0.2℃? 室外相對濕度:最大允差±5%,平均偏差±3% |
|
快速制熱 |
室內干球溫度:最大允差±0.5℃,平均偏差±0.2℃? 墻體平均溫度:最大允差±0.5℃,平均偏差±0.2℃? 室外干球溫度:最大允差±0.5℃,平均偏差±0.2℃? 室外相對濕度:最大允差±5%,平均偏差±3% |
|
防直吹功能 |
防直吹平均風速 |
工況允許溫度偏差不應超過GB/T 7725—2004允許的偏差(干球±0.3℃,濕球±0.2℃) |
柔濕制冷功能 |
房間含濕量 |
1)工況允許溫度偏差不應超過GB/T 7725—2004允許的偏差(干球±0.3℃,濕球±0.2℃,相對濕度±5%);? 2)墻體平均溫度允差±1℃? |
智控溫功能 |
智控溫最低溫度、智控溫回溫溫度 |
|
柔溫功能 |
柔溫功能房間溫度、柔溫功能出風溫度 |
|
遠送風距離功能 |
送風距離 |
室內側干球溫度±3℃ |


















